იყიდება ძველი გარემონტებული 3 ოთახიანი ბინა

(0)

თბილისი, ნუცუბიძის II პლატო, ნუცუბიძის ფერდობი 756 ნახვები ოქტ 29, 2025

$ 155,000 იყიდება

დეტალები
განცხადების ID 7189
ქონება ძველი აშენებულიძველი გარემონტებული
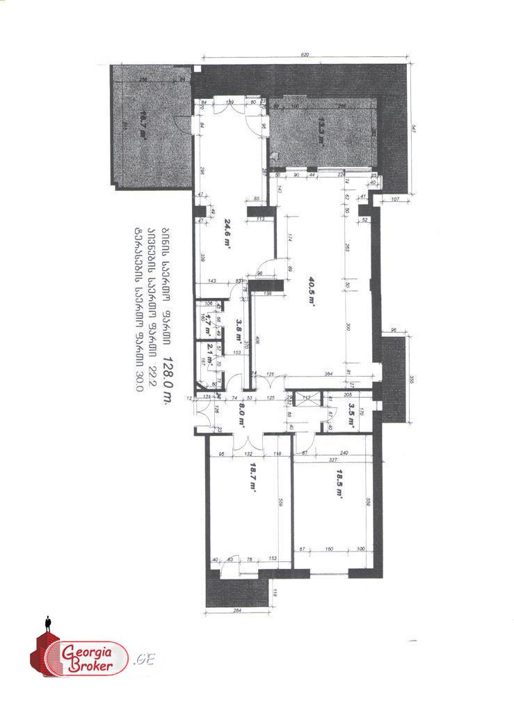
ფართი 180 m²
საძინებლები 2
სველი წერტილი 2
ოთახები 3
ფასი $ 155,000
აღწერა

ბინის ფართი საშუალებას იძლევა გადაკეთდეს 4 ან 5 ოთახიანად. აქვს დახურული ეზო, სპორტული მოედნები, ეზოში პარკინგი და კაპიტალური ავტოფარეხები. შესაძლებელია ავტოფარეხის შეძენაც. სახლის გვერდით დგას ეკლესია, თავისი კეთილმოწყოფილი ეზოთი. სახლის წინ არის ავტობუსის გაჩერება. სახლთან ასევე არის მარკეტები, საყოფაცხოვრებლო ნივთების მაღაზია და აფთიაქები. ფასი 155 000$  მობ 596 108 883 


დეტალები

ინტერნეტი ინტერნეტი

ლიფტი ლიფტი

წყალი წყალი

დენი დენი

გაზი გაზი

ცენტრალური გათბობა ცენტრალური გათბობა


სივრცე

სართული სართული - 6-8

ეზოს ფართი ეზოს ფართი - სარდაფი

აივანი აივანი - 1





გააზიარე განცხადება:



კომენტარის დამატება

გაიარეთ ავტორიზაცია ..




შეუკვეთე ზარი

მსგავსი განცხადებები