იყიდება ახალი გარემონტებული 2 ოთახიანი ბინა

(0)

თბილისი, ბერი გაბრიელ სალოსის გამზ., ისანი 1,046 ნახვები ივნ 17, 2025

$ 54,500 იყიდება

დეტალები
განცხადების ID 6078
ქონება მშენებარეთეთრი კარკასი
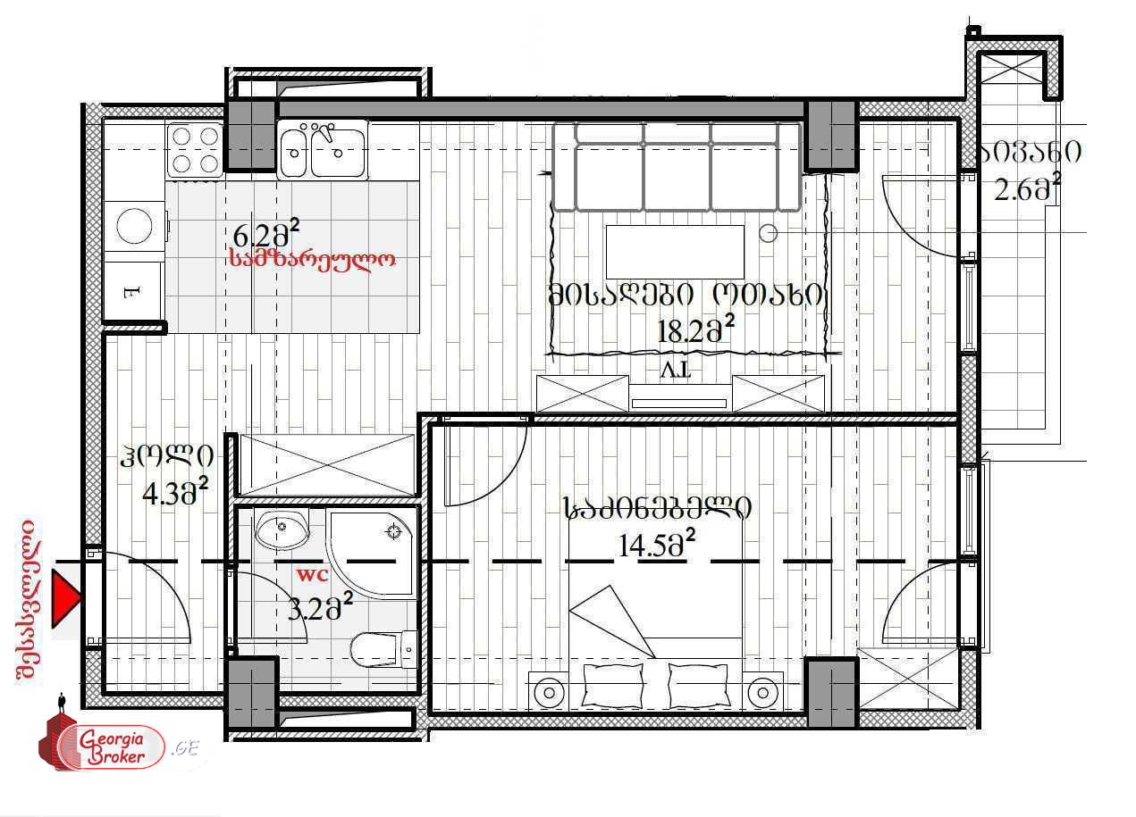
ფართი 50 m²
საძინებლები 1
სველი წერტილი 1
ოთახები 2
ფასი $ 54,500
აღწერა

იყიდება 2-ოთახიანი ბინა ისანში, ბერი გაბრიელ სალოსის გამზირზე ბინის მახასიათებლები: ფართობი: [50.1კვ.მ] აივანი: 3 კვ.მ (აღმოსავლეთის ორიენტირით, ხედით ქალაქის რეკრეაციულ ზონაზე) ვიტრაჟული ფანჯრები — ბინა ნათელი და ჰაეროვანი მდგომარეობა: თეთრი კარკასი+ სართული: 5/10 პროექტი და ინფრასტრუქტურა: მშენებლობა დასრულებულია კორპუსი ბარდება 2025 წლის სექტემბერში თანამედროვე ტიპის საცხოვრებელი კომპლექსი მინუს სართული — პარკინგისთვის პირველი სართული — კომერციული ფართებით 1500 კვ.მ კეთილმოწყობილი ეზო იდეალურია როგორც საცხოვრებლად, ასევე საინვესტიციოდ!


სივრცე

სართული სართული - 5-12

აივანი აივანი - 1





გააზიარე განცხადება:



კომენტარის დამატება

გაიარეთ ავტორიზაცია ..




შეუკვეთე ზარი

მსგავსი განცხადებები